Производство, сборка и монтаж каркасных
домов и бань в Екатеринбурге
Производство, сборка и монтаж каркасных
домов и бань в Екатеринбурге
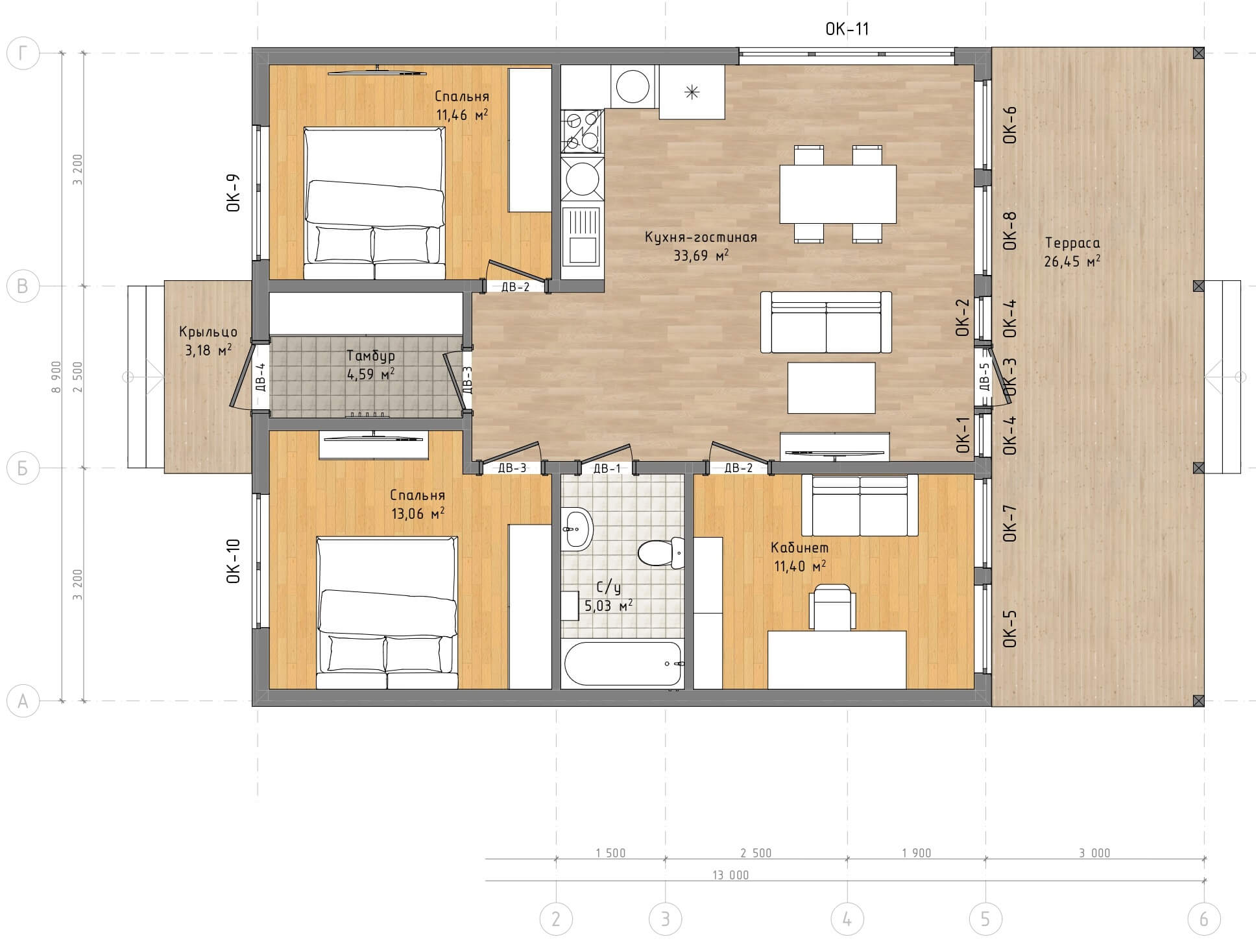
Представляем проект «Проект Дома - 23-15-2» (Каркасный дом). Здание возводится по каркасной технологии с использованием материала «древесина камерной сушки». Габариты: 13 х 8,9 м, общая площадь — 108,85 м². В доме 1 этаж(а), количество спален: 2. Высота конька: 3,6 м. Отличный выбор для загородного строительства.
Тип объекта: Каркасный дом
Материал: Древесина камерной сушки
Теплый контур:
89 кв.м + Терраса = 115.4 кв.м
Жилая площадь: 80 кв.м
Этажей: 1
Спальни: 2
Габариты: 13 х 8,9
Площадь террасы: 26.4
Площадь крыльца: 3
Базовая: от 3.692.800 ₽
Стандартная: от 6.000.800 ₽
Все включено: от 6.924.000 ₽
Общие работы
Фундамент и каркас
Наружная отделка
Утепление дома
Внутренняя отделка
Найдем участок
и включим его стоимость в ипотеку
Бесплатный проект при заключении договора на стройку
Проанализируем грунт для подбора типа фундамента
Доставим строительный материал на вашу территорию
Курирование объекта отдельным специалистом – прорабом
Допустимо строительство на готовом фундаменте заказчика
Расчет фундамента индивидуально по геологии и проекту. В цену не входит.
Для каркаса используется сухая строганая доска (8-12%), 46*146 и 46*196
Кровля – профнастил
“серый графит” 0,45 мм с доборными элементами (конёк, ветровые планки)
Наружная отделка – имитация бруса, хвоя сорт АВ с вентиляционным зазором + профнастил цвет “серый графит”
Окна ПВХ Grain Vektor
с пятикамерным профилем, толщина профиля 70 мм
Оформление окон. Оконные отливы, откосы, наличники
Терраса согласно проекту
Терраса по желанию заказчика. от 9 000 руб./м. кв.
Терраса по желанию заказчика. 22 000 руб./м. кв. крытая, 9 000 руб./м. кв. открытая
Утепление стен. Минеральная вата Knauf 150-200 мм
Утепление пола. Минеральная вата Knauf 150-200 мм
Утепление потолка. Минеральная вата Knauf 150-200 мм
Ветрозащитная мембрана
и пароизоляционная плёнка. Delta и ТехноНиколь с проклейкой стыков
Ветрозащитная мембрана
и пароизоляционная плёнка. Изоспан/Ондутис с проклейкой стыков
Внутренняя отделка. Евровагонка, сосна сорт АВ
Пол.
Фанера 18 мм ФК нешлиф. сорт 4/4
Перегородки каркасные
с дверными проемами под межкомнатные двери и антресоль
Оформление окон.
Откосы, наличники, плинтусы
Хит продаж
Выгодные цены
Каркасный дом
Каркасный дом камерной сушки
Площадь 93.1 кв.м
Древесина камерной сушки
Габариты 12,5 × 7,5 м
Теплый контур:
75 кв.м + Терраса = 93.1 кв.м
Жилая площадь: 65 кв.м
Терраса 18.1 кв.м
Крыльцо 1.79 кв.м
Спальни 2
1 этаж
Базовая: от 2.979.200 ₽
Стандартная: от 4.841.200 ₽
Все включено: от 5.586.000 ₽
Хит продаж
Выгодные цены
Каркасный дом
Каркасный дом камерной сушки
Площадь 131 кв.м
Древесина камерной сушки
Габариты 12 × 6 м
Теплый контур:
120 кв.м + Терраса = 131 кв.м
Жилая площадь: 110 кв.м
Терраса 11 кв.м
Крыльцо 4 кв.м
Спальни 3
2 этаж
Базовая: от 4.192.000 ₽
Стандартная: от 6.812.000 ₽
Все включено: от 7.860.000 ₽
Хит продаж
Выгодные цены
Каркасный дом
Каркасный дом камерной сушки
Площадь 140.6 кв.м
Древесина камерной сушки
Габариты 16,6 × 8,5 м
Теплый контур:
115 кв.м + Терраса = 140.6 кв.м
Жилая площадь: 98 кв.м
Терраса 25.6 кв.м
Крыльцо 2.21 кв.м
Спальни 2
1 этаж
Базовая: от 4.499.200 ₽
Стандартная: от 7.311.200 ₽
Все включено: от 8.436.000 ₽
Хит продаж
Выгодные цены
Каркасный дом
Каркасный дом камерной сушки
Площадь 95.1 кв.м
Древесина камерной сушки
Габариты 9,7 × 11 м
Теплый контур:
88 кв.м + Терраса = 95.1 кв.м
Жилая площадь: 80 кв.м
Терраса 7.1 кв.м
Крыльцо 3.67 кв.м
Спальни 2
1 этаж
Базовая: от 3.043.200 ₽
Стандартная: от 4.945.200 ₽
Все включено: от 5.706.000 ₽
Хит продаж
Выгодные цены
Каркасный дом
Каркасный дом камерной сушки
Площадь 83.8 кв.м
Древесина камерной сушки
Габариты 12 × 7 м
Теплый контур:
70 кв.м + Терраса = 83.8 кв.м
Жилая площадь: 62 кв.м
Терраса 13.8 кв.м
Крыльцо 3 кв.м
Спальни 3
1 этаж
Базовая: от 2.681.000 ₽
Стандартная: от 4.357.600 ₽
Все включено: от 5.028.000 ₽
Хит продаж
Выгодные цены
Каркасный дом
Каркасный дом камерной сушки
Площадь 122 кв.м
Древесина камерной сушки
Габариты 8,5 × 14,5 м
Теплый контур:
102 кв.м + Терраса = 122 кв.м
Жилая площадь: 87 кв.м
Терраса 20 кв.м
Крыльцо 2 кв.м
Спальни 3
1 этаж
Базовая: от 3.904.000 ₽
Стандартная: от 6.344.000 ₽
Все включено: от 7.320.000 ₽
Выбираем или создаем проект, заключаем договор
Вы вносите предоплату, мы закупаем материалы
Наша бригада возводит ваш дом за 1,5-3 месяца
Вы принимаете работу и получаете гарантию
ПРО качественные дома, позитивное сотрудничество и приятные цены
Построили отличный каркасный дом в Екатеринбурге! Качество супер, уложились в полтора мес.
Александр К.
Компания Karkas Haus возвела нам шикарный дом. Смета фиксированная, никаких лишних доплат!
Мария Лапина
Лучшие каркасники в городе! Гарантия по договору до пятнадцати лет, это внушает доверие!
Петр
Отличная работа! Дом возвели очень быстро, материалы качественные. Я советую эту компанию.
Раиса
Выбрали барнхаус из каталога. Строители молодцы, работали на совесть. Тепло и уютно, ТОП.
Тимофей
Сделали классный дом под ключ! Бригада работала аккуратно, мусор за собой убрали. Спасибо!
Светлана
Какой дом планируете построить?
Есть ли у вас земельный участок?
Когда планируете начать строительство?
Расчет готов!
Куда удобнее получить?

Производство, сборка и монтаж каркасных
домов и бань в Екатеринбурге